Appartamento indipendente in vendita
Piombino
RIF. C04
180.000 €
Appartamento indipendente in vendita a Piombino
180.000 €
rif. C04
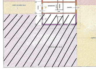
Una casa vicina al mare, con un bel giardino privato, è il tuo sogno nel cassetto? A soli 2,5 km dalle spiagge della Sterpaia, in posizione tranquilla e immersa nel verde, è in fase di realizzazione un appartamento bilocale con una superficie commerciale di 48,67 mq dotato di ingresso indipendente, ampio giardino privato di circa 335 mq totali e porticato coperto, ideale per vivere lo spazio esterno in totale relax e riservatezza. Il giardino antistante la casa ha una superficie di circa 45 mq; da lì, tramite il porticato, si accede al soggiorno con angolo cottura e, attraversando il disimpegno, si raggiungono il bagno e la camera matrimoniale che si affaccia sul giardino retrostante di circa 290 mq. Se cerchi indipendenza, relax e comodità a pochi minuti dal mare, è la soluzione giusta per te!
Nello stesso complesso c'è la possibilità di acquistare di due appartamenti trilocali a partire da € 250.000,00. Sono inclusi nella vendita due posti auto esclusivi per ciascun appartamento.
L’immobile sarà realizzato con tecnologie moderne ad alta efficienza energetica garantendo un risparmio sui consumi. E' previsto impianto fotovoltaico per la produzione di energia elettrica e pannelli solari per la produzione di acqua calda. Per il riscaldamento è prevista pompa di calore caldo/freddo. Gli infissi sono ad alte prestazioni termiche. Gli appartamenti risulteranno in classe energetica A. Il complesso è servito da un pozzo condominiale per l'approvvigionamento idrico. Possibilità di personalizzare le finiture interne.
Appartamento indipendente in vendita
Piombino
A
nuovo
48
2
1
1
T
indipendente 335mq
Vuoi acquistare un immobile?
Da noi puoi trovare
- Serietà e chiarezza nelle informazioni
- Consigli utili sulle opportunità che offre il mercato
- Supporto in fase di proposta d'acquisto e rogito notarile
Vuoi vendere un immobile?
Da noi puoi trovare
- Valutazione reale di mercato
- Supporto nell'analisi e nella ricerca dei documenti necessari
- Competenza e assistenza in tutte le fasi della compravendita







